About Riverstone

Our newest 1-bedroom, 1-bath tiny home

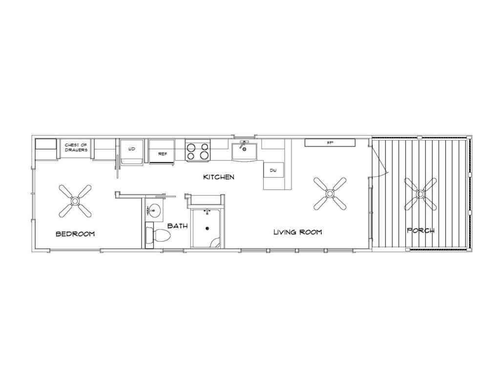
399 sq ft of surprisingly spacious living — built by Mountain View Custom Cabins, now available in The Hamlet!

You want the freedom of a tiny home… but you still want a bedroom that actually fits your queen bed and a living room where you can stretch out and relax.

We get it.

That’s exactly why we created the Riverstone.

As your guide, we’ve taken the stress out of downsizing. One big bedroom that easily fits a queen bed plus furniture. A generous living room for evenings in. A full kitchen with stainless steel appliances included.  Perfect for singles, couples, or anyone ready to slash expenses, cut the maintenance, and start living the simple life you actually want.

Your ultra-simple story starts here.

Ready to see how good tiny can feel?

Schedule your private tour in The Hamlet today